도곡동 타워팰리스 3차 63평 인테리어 : 구조 개선과 하이엔드 스타일 제안
왜 클라이언트가 모든걸 고민해야 하나요?


























조니클래식이 맞춤 리모델링 정답을 제안드립니다.
👇 실제로 어떻게 풀었는지 영상으로 보면 더 이해됩니다
비슷한 구조 아파트를 어떻게 풀어냈는지
조니클래식 디자인 영상으로 확인해보세요.
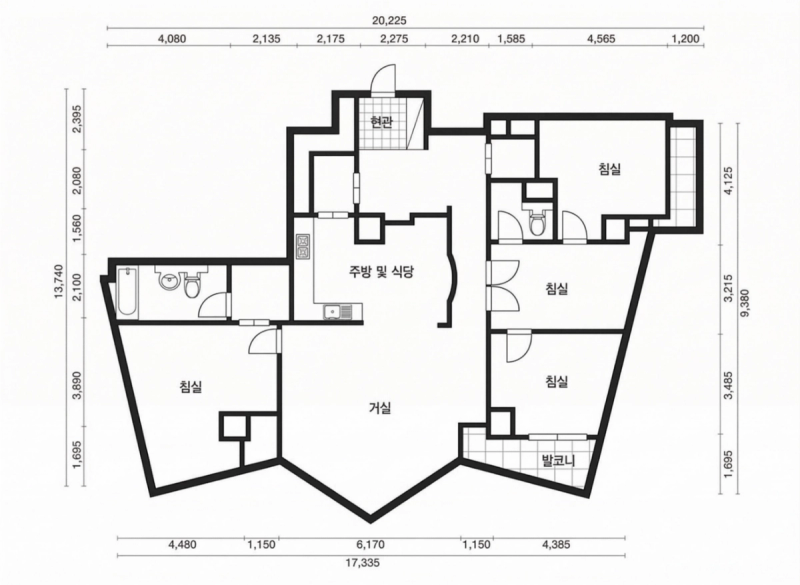
기존 평면 구조 분석

타워팰리스 3차 63평형(69A 타입)은 타워형 아파트의 전형적인 구조로, 거실과 주방이 유기적으로 연결되어 있으면서도 보조 주방으로 연결되는 통로가 곳곳에 배치되어 있습니다. 벽면이 많고 복도가 길게 형성되어 있어 자칫 공간이 파편화되어 보일 수 있으며, 기존 평면에서는 보조 주방 출입구 때문에 본 주방의 벽면 활용도가 제한적인 구조적 특징이 있습니다.
불편한 구조 문제
가장 큰 구조적 결함은 보조 주방으로 이어지는 불필요한 통로들로 인해 본 주방의 면적과 수납 효율이 분산된다는 점이었습니다. 주방 우측 통로가 공간을 끊어놓아 대형 가전을 일렬로 배치하기 어려웠고, 이는 50평대 대형 평수임에도 주방이 상대적으로 협소해 보이게 만드는 원인이었습니다. 또한 긴 복도 라인에 몰딩과 문선이 노출되어 시각적 노이즈가 많았으며, 다이닝 공간의 경계가 모호해 거실의 개방감을 온전히 누리지 못하는 한계가 있었습니다.
공간 개선 방향


보조 주방으로 바로 연결되던 우측 통로를 과감히 폐쇄하고, 그 자리를 펜트리와 냉장고 장으로 활용하여 주방 벽면을 하나로 통합했습니다. 통로가 사라진 자리에 냉장고 3대를 나란히 배치함으로써 8~90평형대에서나 볼 수 있는 웅장하고 넓은 주방 라인을 완성했습니다. 거실과 주방 사이에는 슬라이딩 중문을 설치하여 다이닝 공간을 독립적으로 분리, 아늑한 식사 자리를 확보하는 동시에 거실의 소파 공간을 더욱 넓게 쓸 수 있도록 레이아웃을 최적화했습니다. 현관은 우드톤 중문과 모노톤 벽체를 매치하고, 들어서자마자 마주하는 벽면을 갤러리 같은 전시 공간으로 꾸며 하이엔드 주거의 품격을 높였습니다.
추천 인테리어 스타일
선의 흐름이 끊기지 않는 하이엔드 월넛 & 미니멀 스타일을 제안드립니다. 모든 벽면은 페인트와 필름 마감을 적용하고 히든 도어와 모티스 손잡이를 사용해 몰딩 없는 매끈한 벽체를 구현하십시오. 주방은 세련된 아일랜드 테이블을 배치해 홈파티와 와인을 즐길 수 있는 라운지 무드를 연출하고, 안방은 월넛톤 마루와 붙박이장을 매치해 따뜻하고 깊이감 있는 분위기를 조성하는 것이 좋습니다. 안방 욕실은 조적 파티션과 조적 욕조, 매립 수전을 활용해 세면·샤워·변기 공간을 완벽히 분리한 호텔식 레이아웃을 추천합니다.
예상 공사 범위
2026년 기준, 구조 변경 공사를 강력히 추천드립니다. 복도 전체 필름/페인트 시공 및 히든 도어 설치 목공 작업이 핵심이며, 안방 조적 욕조 및 매립 수전 설비 공사가 병행되어야 합니다. 게스트룸 2개소를 포함한 전체 공간의 조도 재설계와 가구 맞춤 제작(푸쉬 도어 타입) 등 디테일한 하드웨어 교체가 포함된 토탈 시공을 권장합니다.
인테리어 공사 예상 견적
평형 / 스타일을 선택하세요
조니클래식 에센셜
필수적인 레이아웃 개선과 정돈된 마감
조니클래식 시그니처
조니클래식만의 감도 높은 디자인과 마감
※ 구조 변경, 마감재 선택, 가구 제작 여부에 따라 실제 견적은 달라질 수 있습니다.
정확한 견적은 방문 실측 후 안내해 드립니다.
johnnie창업자의 닉네임classic영원한 가치
조니클래식(johnnieclassic)은 창업자의 닉네임 ‘johnnie’와 영원한 가치를 작업물에 담고자 하는 정신을 나타낸 ‘classic’이 이어붙여져 만들어진 회사명입니다.
클래식한 가치는 저희 브랜드를 믿고 구매하는 고객이 필수적으로 얻어야 하는 것이라고 생각합니다. 공간과 사용자를 위한 최선의 정답을 찾아내어 퀄리티를 완성하고 있습니다. 1퍼센트의 추가 완성도를 위해 1.5배 더 고민하더라도 오래도록 가치 있는 집을 완성하겠습니다.

생생한 시공 후기
조니클래식과 함께한 고객님들의 실제 후기입니다.


























비슷한 평형 아파트 인테리어 시공 사례
자주 묻는 질문 (FAQ)
인근 지역 인테리어 사례
단지 정보
강남구 도곡동의 상징이자 대한민국 하이엔드 주거의 대명사인 타워팰리스 3차는 독보적인 스카이라인과 철저한 보안, 프라이빗한 커뮤니티를 자랑하는 단지입니다. 지하철 3호선과 수인분당선 도곡역 초역세권에 위치하며, 양재천 산책로와 매봉산이 인접해 도심 속에서도 자연의 여유를 누릴 수 있습니다. 2004년 준공 이후 시간이 흐른 만큼, 타워형 구조 특유의 장점을 살리면서도 현대적인 미니멀리즘과 실용성을 더하는 레이아웃 재구성이 집의 가치를 결정짓는 핵심입니다.





