방배 서리풀 e-편한세상 33평형 인테리어 리모델링 사례
서초구 방배동에 위치한 방배 서리풀 e편한세상은 비교적 최근에 공급된 단지로, 안정적인 주거 환경과 실거주 중심의 평면 구성을 갖춘 아파트입니다. 33평형은 3룸 구조로 가족 단위 거주에 적합한 구성입니다. 전체적으로 균형 잡힌 구조를 가지고 있지만, 공간 연결 방식에서 아쉬움이 존재합니다. 특히 주방과 거실의 관계 설정에 따라 공간의 완성도가 크게 달라지는 평면입니다. 구조 자체보다 공간을 어떻게 연결하고 정리하느냐가 중요한 타입입니다.
방배 서리풀 e-편한세상 33 인테리어 포트폴리오 (시공사례 & 디자인제안)
등록된 결과가 없습니다.
기존 평면 구조 분석

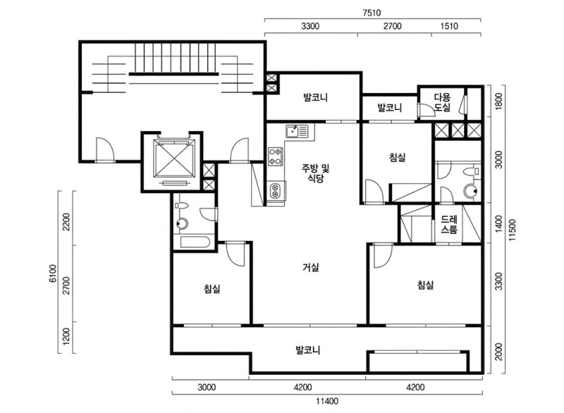
이 평면은 거실을 중심으로 좌우에 침실이 배치된 전형적인 중앙형 구조입니다. 주방과 식당은 거실 상부에 위치하며, 완전 개방형이 아닌 반개방 형태로 구성되어 있습니다. 현관에서 진입하면 주방을 먼저 지나 거실로 이어지는 동선 구조를 가지고 있습니다. 안방은 드레스룸과 욕실이 함께 배치되어 독립적인 생활 영역으로 구성되어 있습니다. 전체적으로 기능 배치는 안정적이지만 공간 간 연결성이 부족한 구조입니다.
불편한 구조 문제
주방이 반개방 구조로 되어 있어 시각적으로 답답함을 느끼기 쉬운 구조입니다. 거실과 주방이 명확하게 연결되지 않아 공간이 분리되어 보이는 문제가 있습니다. 현관에서 거실로 이어지는 동선이 꺾이는 형태로 구성되어 이동 흐름이 자연스럽지 않습니다. 거실이 중심 공간임에도 불구하고 공간의 중심성이 약하게 형성되어 있습니다. 안방과 드레스룸의 연결은 가능하지만 진입 방식이 직관적이지 않아 활용도가 떨어집니다.
공간 개선 방향
이 평면은 주방을 중심으로 공간 구조를 명확하게 정리하는 것이 핵심입니다. 주방을 거실과 연결되는 오픈형 구조로 정리하면 공간의 확장감을 확보할 수 있습니다. 반대로 분리형으로 계획할 경우에는 완전히 독립된 공간으로 구성하는 것이 효과적입니다. 바닥과 천장 라인을 통일해 하나의 공간처럼 인식되도록 설계하는 것이 중요합니다. 동선을 단순화하여 현관에서 거실까지 자연스럽게 이어지도록 구성하는 것이 필요합니다.
추천 인테리어 스타일
화이트와 우드톤을 기반으로 밝고 확장감 있는 분위기를 연출하는 것이 적합합니다. 아일랜드를 중심으로 공간의 중심축을 형성하는 구성이 효과적입니다. 천장 간접조명을 활용해 수평적인 공간 확장을 유도하는 연출이 필요합니다. 불필요한 요소를 최소화하고 깔끔한 라인 중심의 디자인이 잘 어울립니다. 전체적으로는 미니멀하면서도 따뜻한 내추럴 스타일이 적합한 평면입니다.
예상 공사 범위
주방과 거실 사이 공간은 구조 확인 후 오픈 여부를 판단하여 설계가 진행됩니다. 주방 가구 재배치 및 아일랜드 설치를 통한 구조 개선이 포함될 수 있습니다. 바닥 마감과 천장 디자인을 통일해 공간 연결감을 강화하는 작업이 필요합니다. 조명 계획 변경을 통해 공간 분위기와 체감 면적을 개선할 수 있습니다. 정확한 공사 범위는 현장 실측과 구조 확인을 기반으로 결정하는 것이 중요합니다.
인터랙티브 예상 견적
해당 단지의 예상 견적 정보가 아직 등록되지 않았습니다.
자세한 견적은 직접 문의해 주시면 친절히 상담해 드리겠습니다.









