거여 현대 1차 31평형 인테리어 리모델링 사례
거여 현대 1차 아파트는 서울 송파구 거여동에 위치하며, 5호선 거여역을 중심으로 한 생활권에 포함됩니다. 주변은 기존 주거단지와 생활형 상권이 함께 형성된 지역으로, 실거주 중심의 환경이 안정적으로 유지되고 있습니다. 단지 인근에는 전통시장, 마트, 병원 등 생활 편의시설이 밀집되어 있어 일상 생활 접근성이 좋은 편입니다. 학교와 근린공원이 가까워 가족 단위 거주에 적합한 입지 조건을 갖추고 있습니다. 31평형은 방 3개 구성으로, 길게 이어진 구조를 어떻게 정리하느냐가 핵심이 되는 평형입니다.
거여 현대 1차 31 인테리어 포트폴리오 (시공사례 & 디자인제안)
등록된 결과가 없습니다.
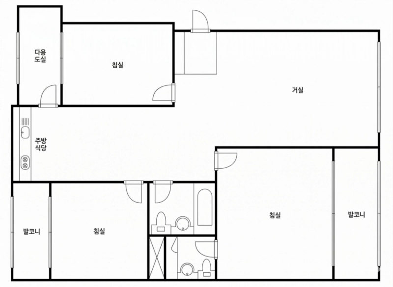
기존 평면 구조 분석

현관을 기준으로 우측에 거실이 넓게 배치되고, 좌측으로 주방 및 식당이 길게 이어지는 구조입니다. 침실은 좌측 상부, 좌측 하부, 우측 하부에 각각 배치된 3룸 형태입니다. 욕실은 중앙 하부에 위치하며, 두 개의 욕실이 나란히 배치된 구조를 보입니다. 거실과 주방은 일자 형태로 길게 연결되어 있어 하나의 긴 공용 공간을 형성합니다. 전체적으로 좌우로 길게 펼쳐진 ‘일자형 확장 구조’가 특징입니다.
불편한 구조 문제
거실과 주방이 길게 이어지면서 공간의 중심이 분산되는 문제가 발생합니다. 동선이 길어져 이동 효율이 떨어지고, 생활 흐름이 늘어지는 구조입니다. 공용 공간이 넓지만 기능 구분이 명확하지 않아 활용도가 떨어질 수 있습니다. 침실 접근 동선이 길게 이어지면서 이동 동선이 반복되는 문제가 있습니다. 전체적으로 공간은 넓지만, 집중도가 떨어져 체감 효율이 낮아질 수 있는 구조입니다.
공간 개선 방향
거실과 주방 사이에 중심 영역을 설정해 공간의 축을 만들어주는 것이 중요합니다. 길게 늘어진 구조를 분절하거나 구획해 사용성을 높이는 방향이 필요합니다. 주방은 아일랜드 중심 구조로 전환해 공용 공간의 중심 역할을 부여하는 것이 효과적입니다. 동선을 단축하고 주요 이동 흐름을 재정리해 생활 효율을 높이는 것이 핵심입니다. 전체적으로 ‘일자형 구조 → 중심 집중형 구조’로 재구성하는 방향이 적합합니다.
추천 인테리어 스타일
밝은 뉴트럴 톤 기반의 모던 스타일을 적용해 공간을 정리하는 것이 효과적입니다. 긴 구조를 보완하기 위해 바닥 패턴과 천장 라인을 통일해 흐름을 정리해야 합니다. 조명은 공간 중심에 포인트를 두고, 라인 조명을 활용해 길이를 분절하는 방식이 적합합니다. 가구는 공간을 나누는 기준이 되도록 배치해 기능 구획을 명확히 해야 합니다. 전체적으로 ‘길이 분절형 디자인’이 가장 적합한 접근입니다.
예상 공사 범위
비내력벽 일부 철거를 통해 거실과 주방 사이 공간을 재구성하며, 발코니 확장 시 이중창 샷시 전면 교체가 포함됩니다. 설비 공사는 노후 배관 교체를 기본으로 진행되며, 시스템 에어컨 설치를 위한 단내림 및 배관 공사가 병행됩니다. 목공 공사에서는 천장 평탄화와 무몰딩/무문선 디테일, 공간 분절을 위한 구조 정리가 이루어집니다. 마감은 고급 도장 또는 프리미엄 벽지와 함께 원목 마루 또는 대형 타일 마감으로 구성됩니다. 조명 및 전열 공사는 전체 배선 신설과 함께 라인 조명, 간접조명, 스위치 시스템 적용까지 포함됩니다.
인테리어 공사 예상 견적
해당 단지의 예상 견적 정보가 아직 등록되지 않았습니다.
자세한 견적은 직접 문의해 주시면 친절히 상담해 드리겠습니다.









