거여 1단지 21평형 인테리어 리모델링 사례
거여 1단지 아파트는 서울 송파구 거여동에 위치하며, 5호선 거여역을 중심으로 한 생활권에 포함됩니다. 주거 중심의 조용한 환경이 형성된 지역으로, 대형 상업시설보다는 실생활 위주의 인프라가 갖춰져 있습니다. 단지 인근에는 전통시장, 소형 마트, 병원, 학군이 형성되어 있어 기본적인 생활 편의성이 확보되어 있습니다. 주변에 근린공원과 산책로가 위치해 있어 일상적인 여가 환경도 갖추고 있습니다. 21평형은 방 2개 구조로, 공간 효율과 동선 간결화가 가장 중요한 평형입니다.
거여 1단지 21 인테리어 포트폴리오 (시공사례 & 디자인제안)
등록된 결과가 없습니다.
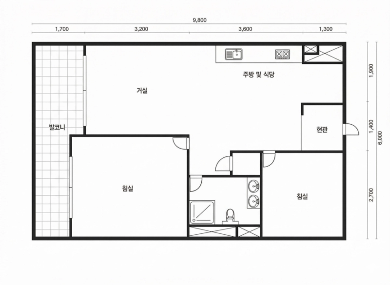
기존 평면 구조 분석

현관을 기준으로 우측에 주방이 배치되고, 좌측으로 거실이 넓게 이어지는 구조입니다. 침실은 좌측 하부와 우측 하부에 각각 위치한 2룸 구성입니다. 욕실은 중앙 하부에 위치하여 두 침실과 공용 공간에서 접근하는 형태입니다. 거실과 주방은 별도의 구획 없이 이어져 있어 하나의 공용 공간으로 인식됩니다. 전체적으로 직사각형 형태의 단순 구조로, 공간 구성이 명확하지만 활용 방식에 따라 효율 차이가 발생하는 구조입니다.
불편한 구조 문제
거실과 주방이 명확히 분리되지 않아 공간 사용 시 기능 구분이 흐려지는 문제가 있습니다. 좁은 평형 특성상 동선이 겹치는 구간에서 사용 불편이 발생할 가능성이 높습니다. 침실 출입 동선이 거실과 직접 연결되어 있어 프라이버시 확보가 어려운 구조입니다. 주방이 벽면에 밀착된 형태로 배치되어 작업 공간 확장이 제한됩니다. 전체적으로 공간 여유가 부족해 체감 면적이 실제보다 좁게 느껴질 수 있습니다.
공간 개선 방향
거실과 주방 사이에 시각적 또는 가구 기반의 구획을 설정해 공간 기능을 분리하는 것이 중요합니다. 동선이 겹치는 구간을 최소화해 이동 흐름을 단순화하는 방향으로 재구성해야 합니다. 주방은 작업 효율을 고려해 동선 중심으로 재배치하거나 보조 작업 공간을 확보하는 것이 필요합니다. 거실은 가구 배치를 통해 영역을 구분하고, 공간 활용도를 높이는 방식으로 접근해야 합니다. 전체적으로 ‘단순 구조 → 기능 분리형 구조’로 정리하는 것이 핵심입니다.
추천 인테리어 스타일
화이트 베이스에 밝은 우드톤을 더한 내추럴 미니멀 스타일이 가장 적합합니다. 벽체와 천장을 최대한 단순하게 정리해 시각적 확장 효과를 만드는 것이 중요합니다. 조명은 천장 중심 조명과 간접조명을 병행해 공간 깊이를 확보하는 방식이 효과적입니다. 가구는 부피를 줄이고 수납 기능을 포함한 일체형 디자인으로 구성하는 것이 좋습니다. 전체적으로 ‘가벼운 분위기 + 확장감 중심 디자인’이 핵심입니다.
예상 공사 범위
비내력벽 조정 및 부분 철거를 통해 거실과 주방 사이 공간 구조를 재정리하며, 필요 시 발코니 확장과 샷시 교체가 포함됩니다. 설비 공사는 기존 배관 점검 후 교체를 진행하고, 시스템 에어컨 설치를 위한 단내림 및 배관 공사가 병행됩니다. 목공 공사에서는 불필요한 구조 요소를 정리하고, 천장 평탄화 및 무몰딩 마감으로 공간을 단순화합니다. 마감은 밝은 계열 도장 또는 프리미엄 벽지로 구성하며, 바닥은 라이트톤 마루 또는 타일로 마감됩니다. 조명 및 전열 공사는 전체 배선 정리와 함께 간접조명 및 기본 조명 계획, 스위치 시스템 적용까지 포함됩니다.
인테리어 공사 예상 견적
해당 단지의 예상 견적 정보가 아직 등록되지 않았습니다.
자세한 견적은 직접 문의해 주시면 친절히 상담해 드리겠습니다.







