거여 4단지 26평형 인테리어 리모델링 사례
거여 4단지 아파트는 서울 송파구 거여동에 위치하며, 5호선 거여역을 중심으로 한 생활권에 속해 있습니다. 주변은 대단지 아파트와 저층 주거지가 혼합된 지역으로, 비교적 조용한 주거 환경이 형성되어 있습니다. 인근에는 전통시장, 병원, 소형 상업시설이 위치해 일상 생활에 필요한 인프라가 확보되어 있습니다. 학교와 근린공원이 가까운 거리에 있어 실거주 중심의 안정적인 생활이 가능한 입지입니다. 26평형은 방 3개 구성으로, 공간 균형과 동선 정리가 중요한 중소형 평형입니다.
거여 4단지 26 인테리어 포트폴리오 (시공사례 & 디자인제안)
등록된 결과가 없습니다.
기존 평면 구조 분석

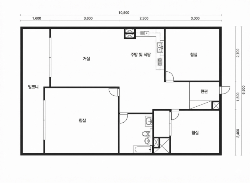
현관을 기준으로 우측에 주방 및 식당이 위치하고, 좌측으로 거실이 넓게 펼쳐진 구조입니다. 침실은 좌측 하부의 큰 방과 우측 상부, 우측 하부에 분산 배치된 3룸 형태입니다. 욕실은 중앙 하부에 위치해 각 공간에서 접근할 수 있도록 구성되어 있습니다. 거실과 주방은 하나의 흐름으로 이어지지만, 구조적으로 중심 축이 명확하지 않은 형태입니다. 전체적으로 좌우 비대칭 형태를 띄며, 공간 간 균형이 일정하지 않은 구조입니다.
불편한 구조 문제
현관을 기준으로 우측에 주방 및 식당이 위치하고, 좌측으로 거실이 넓게 펼쳐진 구조입니다. 침실은 좌측 하부의 큰 방과 우측 상부, 우측 하부에 분산 배치된 3룸 형태입니다. 욕실은 중앙 하부에 위치해 각 공간에서 접근할 수 있도록 구성되어 있습니다. 거실과 주방은 하나의 흐름으로 이어지지만, 구조적으로 중심 축이 명확하지 않은 형태입니다. 전체적으로 좌우 비대칭 형태를 띄며, 공간 간 균형이 일정하지 않은 구조입니다.
공간 개선 방향
거실을 중심 공간으로 명확히 설정하고, 주방과의 관계를 재정립하는 것이 중요합니다. 비대칭 구조는 가구 배치와 디자인 요소를 통해 시각적으로 균형을 맞추는 방식이 효과적입니다. 주방은 오픈형 또는 확장형으로 재구성해 공간 활용도를 높이는 것이 필요합니다. 동선이 집중되는 구간을 분산시키고, 이동 흐름을 자연스럽게 연결하는 방향으로 정리해야 합니다. 전체적으로 ‘불균형 구조 → 중심 정렬 구조’로 재구성하는 것이 핵심입니다.
추천 인테리어 스타일
밝은 뉴트럴 컬러 기반의 모던 내추럴 스타일이 공간 균형을 잡기에 적합합니다. 비대칭 구조를 보완하기 위해 벽면과 천장 디자인을 단순하게 정리하는 것이 중요합니다. 조명은 중심 공간을 기준으로 배치하고, 보조 조명으로 균형을 맞추는 방식이 효과적입니다. 가구는 좌우 균형을 고려해 배치하고, 시선이 한쪽으로 쏠리지 않도록 계획해야 합니다. 전체적으로 ‘균형 보정형 디자인’이 가장 적합한 방향입니다.
예상 공사 범위
비내력벽 일부 철거를 통해 거실과 주방의 연결성을 강화하는 구조 변경이 진행되며, 발코니 확장 시 샷시 교체가 포함됩니다. 설비 공사는 노후 배관 교체와 함께 시스템 에어컨 설치를 위한 단내림 및 배관 공사가 병행됩니다. 목공 공사에서는 공간 정리를 위한 가벽 조정과 천장 평탄화, 무몰딩 디테일이 적용됩니다. 마감은 고급 도장 또는 프리미엄 벽지와 함께 밝은 톤 마루 또는 타일 마감으로 구성됩니다. 조명 및 전열 공사는 전체 배선 정리와 함께 중심 조명 및 간접조명, 스위치 시스템 적용까지 포함됩니다.
인테리어 공사 예상 견적
해당 단지의 예상 견적 정보가 아직 등록되지 않았습니다.
자세한 견적은 직접 문의해 주시면 친절히 상담해 드리겠습니다.









