행당 신동아 24평형 인테리어 리모델링 사례
행당동의 완만한 경사지에 위치하여 쾌적한 공기와 도심 조망권을 동시에 누릴 수 있는 실속형 단지입니다. 주변에 초중고등학교가 밀집해 있어 어린 자녀를 둔 세대의 선호도가 매우 높으며, 대규모 주거 타운 속에 위치하여 생활 인프라가 안정적입니다. 323세대로 구성된 24평형은 1인 가구나 신혼부부에게 최적화된 컴팩트한 평면을 갖추고 있으며, 리모델링을 통해 공간 활용도를 비약적으로 높일 수 있는 잠재력이 큰 타입입니다.
행당 신동아 24 인테리어 포트폴리오 (시공사례 & 디자인제안)
등록된 결과가 없습니다.
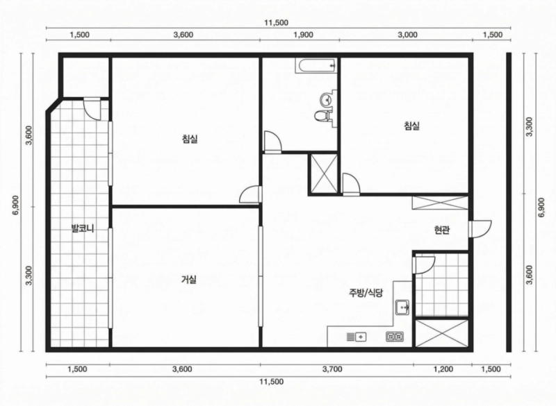
기존 평면 구조 분석

가로로 긴 평면 비례를 가지고 있으며, 특히 거실 좌측을 따라 세로로 배치된 대형 발코니가 이 집의 가장 독창적인 특징입니다. 일반적인 20평대 구조와 달리 거실과 주방이 나란히 배치되어 공용 공간의 연결성이 매우 좋으며, 맞통풍이 가능한 창호 구조 덕분에 환기에 유리한 장점이 있습니다. 침실들이 거실을 중심으로 좌우에 나뉘어 있어 작지만 독립적인 생활이 가능하며, 현관 옆으로 별도의 다용도 공간이 확보되어 있습니다.
불편한 구조 문제
좌측의 넓은 발코니 공간이 분리되어 있을 경우 실제 거실로 가용할 수 있는 면적이 좁게 느껴지고 시각적인 개방감이 다소 떨어질 수 있습니다. 주방 공간이 거실 입구와 맞닿아 있어 조리 공간의 독립성이 부족하며, 식탁이나 대형 냉장고를 두기에 공간이 다소 타이트하여 동선이 산만해질 우려가 있습니다. 또한 현관을 열자마자 주방과 거실이 한눈에 들어오는 구조적 특징 때문에 프라이버시 보호와 공간 구분을 위한 디자인적 장치가 부재한 점이 아쉽습니다.
공간 개선 방향
가장 핵심적인 전략은 좌측의 긴 발코니를 확장하여 거실의 깊이감을 확보하고, 창가 공간을 다이닝 존이나 홈오피스 등 라이프스타일에 맞게 재정의하는 것입니다. 주방은 기존의 '一'자 형태에서 탈피하여 거실 쪽으로 짧은 반대면형 아일랜드를 설치하거나 하부장을 연장하여 조리대와 식사 공간을 효율적으로 통합해야 합니다. 현관에는 슬림한 중문과 파티션을 신설하여 진입로를 깔끔하게 분리하고, 주방 옆 다용도실은 세탁기와 가전을 타워형으로 배치하여 수납 공간을 최대한 확보하길 권장합니다.
추천 인테리어 스타일
작은 평수일수록 공간이 넓어 보이는 효과를 주는 화사하고 깔끔한 '미니멀 모던' 스타일을 적용하여 시각적인 팽창감을 주는 것이 좋습니다. 전체적으로 밝은 톤의 자재를 사용하되 바닥은 결이 고운 우드 마루를 적용하여 따뜻함을 더하고, 주방 가구는 벽면과 톤을 맞춰 일체감을 주는 것이 효과적입니다. 천장은 복잡한 등기구 대신 매립 조명과 은은한 간접 조명을 활용해 층고를 높여 보이고, 선을 간결하게 정리하는 무몰딩 시공으로 세련된 마감을 완성하길 추천합니다
예상 공사 범위
실생활 면적 확장을 위한 좌측 대형 발코니 확장 및 고성능 섀시 교체, 그리고 완벽한 단열 보강 공사가 전체 공사의 가장 큰 비중을 차지합니다. 주방의 현대적인 가전 배치와 효율적인 동선을 위한 설비 위치 조정 및 맞춤형 가구 제작 공사가 필수적으로 진행되어야 합니다. 또한 구축 특유의 노후된 벽면과 천장을 평탄하게 다듬는 정밀 목공 작업과 함께 현관 중문 신설을 위한 구조틀 작업, 그리고 욕실을 트렌디하게 리뉴얼하는 과정이 포함됩니다.
인테리어 공사 예상 견적
해당 단지의 예상 견적 정보가 아직 등록되지 않았습니다.
자세한 견적은 직접 문의해 주시면 친절히 상담해 드리겠습니다.









