상도 더샵 1차 49평형 인테리어 리모델링 사례
서울 동작구 상도동의 중심에서 신상도초등학교 등 우수한 교육 인프라를 가깝게 누릴 수 있는 지역의 대표적인 브랜드 대단지 아파트입니다. 2007년에 준공되어 구축 특유의 넉넉한 서비스 면적과 탄탄한 전용률(80%)을 갖추고 있으며, 단지 내 정돈된 조경과 편리한 생활 시스템이 돋보입니다. 총 1,122세대의 안정적인 규모를 자랑하며, 특히 228세대로 구성된 49평형은 단지 내에서도 희소성 있는 중대형 타입으로 꼽힙니다. 프리미엄 리모델링을 통해 대형 평수 특유의 웅장함을 극대화하여 동작구 하이엔드 주거의 품격을 실현하기에 최적인 조건을 갖춘 평면입니다.
상도 더샵 1차 49 인테리어 포트폴리오 (시공사례 & 디자인제안)
등록된 결과가 없습니다.
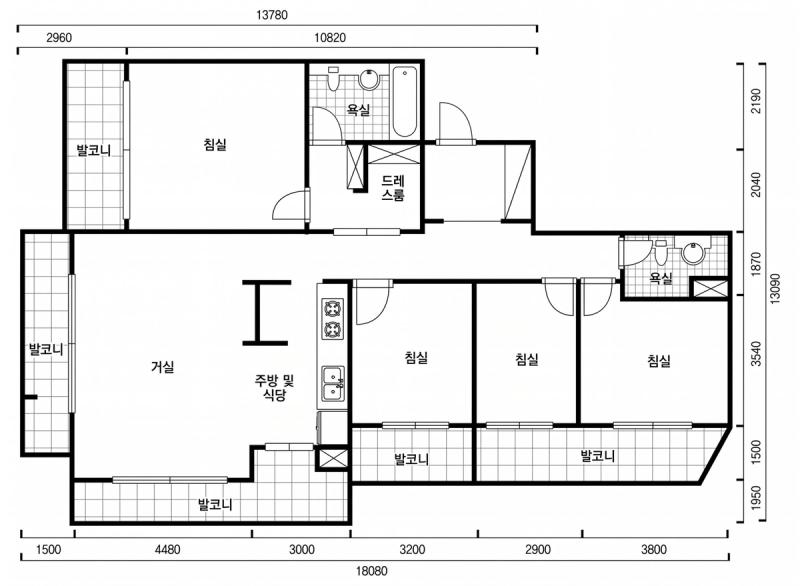
기존 평면 구조 분석

거실과 안방, 그리고 나란히 배치된 침실들이 전면을 향하는 와이드한 판상형 구조로, 집안 전체에 풍부한 채광과 개방감을 선사하는 우수한 평면입니다. 40평대 후반답게 거실과 주방이 집의 중심 축을 이루며 광활한 홀처럼 연결되어 있어, 공용 공간에서 느껴지는 시각적인 웅장함이 압도적입니다. 안방 마스터 존은 전용 욕실과 드레스룸이 짜임새 있게 연계된 독립적인 스위트룸 구조를 보여주며, 나머지 침실들도 각각 여유로운 크기로 설계되었습니다. 현관에서 진입 시 탁 트인 복도를 거쳐 거실로 이어지는 드라마틱한 동선과 곳곳에 배치된 넓은 발코니가 공간의 가변성을 높여주는 탄탄한 설계입니다.
불편한 구조 문제
대형 평수의 웅장한 면적에 비해 주방 조리대 공간이 다소 폐쇄적으로 형성되어 있어 요리 시 거실과의 소통이 단절되고 동선이 비효율적일 수 있습니다 거실과 각 침실을 분절하는 노출된 문틀과 천장의 두꺼운 우물천장 몰딩, 투박한 메인 조명은 시선을 분산시키고 실제보다 공간을 낮고 조각나 보이게 만드는 원인이 됩니다. 현관 진입 시 시선이 내부 복도와 주방 경계면으로 바로 노출되어 진입부의 시각적 정돈과 프라이버시 보호를 위한 디자인적 완충 지대가 부재한 상태입니다. 분절된 다수의 발코니 공간들은 시각적인 연속성을 저해하며, 현대적인 하이엔드 가전이나 초대형 식탁을 배치하기에 주방 주변 공간이 다소 투박하게 느껴질 수 있습니다.
공간 개선 방향
가장 효과적인 전략은 주방의 답답한 가벽을 정리하고 거실을 마주 보는 초대형 와이드 아일랜드를 설치하여 소통 중심의 하이엔드 LDK 구조를 완성하는 것입니다. 거실 벽면부터 침실 도어까지 무문선 공법과 히든도어를 적용해 도어 라인을 삭제하고 하나의 면으로 길게 연결하여 60평대 이상의 광활한 갤러리 같은 시각적 확장을 구현해야 합니다. 전면 광폭 발코니를 실내로 통합하여 실제 가용 면적을 극대화하고, 창가 자리를 라이프스타일에 맞춘 라운지나 홈 오피스로 재구성하여 개방감을 비약적으로 높이길 권장합니다. 현관에는 슬림한 중문과 하부 띄움 파티션을 신설하여 진입로의 소음 차단과 함께 상도 더샵만의 무게감 있고 품격 있는 첫인상을 연출하는 것이 무엇보다 중요합니다.
추천 인테리어 스타일
중대형 평수의 웅장한 비례감을 시각적으로 극대화할 수 있는 '하이엔드 미니멀리즘' 스타일을 적용하여 소재의 질감과 선의 정갈함이 돋보이는 분위기를 연출해 보세요. 전체적으로 밝은 뉴트럴 컬러를 베이스로 삼고 천장의 메인 조명을 삭제한 뒤, 정교하게 조도를 계산한 매립등과 간접 조명을 활용해 은은하고 입체적인 공간감을 형성합니다. 주방 미드웨이는 상판과 동일한 대형 세라믹이나 석재 패턴 소재로 마감하여 시각적 분절을 없애고 세련된 일체감을 완성하는 것이 시각적 확장에 매우 효과적입니다. 안방은 무몰딩 빌트인 수납 시스템과 헤드보드 디자인을 일체화하여 하이엔드 호텔 스위트룸 같은 아늑함과 기능성을 동시에 확보하시길 추천합니다.
예상 공사 범위
히든도어와 무문선, 무몰딩을 완벽히 구현하기 위한 전 구역 벽체 신설 및 정밀 목공 평탄화 작업이 전체 공정의 가장 큰 기술적 비중과 완성도를 결정하게 됩니다. 실생활의 개방감을 좌우하는 전 구역 발코니 확장 공사와 이에 따른 고성능 창호 교체, 그리고 20년 가까이 된 설비 및 정밀 단열 보강 공사가 필수적으로 선행되어야 합니다. 주방의 대면형 레이아웃 전환을 위한 급배수 설비 이설과 최신 가전 매립형 프리미엄 맞춤 가구 제작 공사가 핵심적으로 진행되며, 이는 생활의 질을 비약적으로 높여줍니다. 또한 전 구역의 전기 배선을 완전히 재구축하여 조명 회로를 세분화하고, 욕실 2개소를 최신 트렌드에 맞춰 하이엔드 사양으로 리뉴얼하는 과정이 모두 포함됩니다.
인테리어 공사 예상 견적
해당 단지의 예상 견적 정보가 아직 등록되지 않았습니다.
자세한 견적은 직접 문의해 주시면 친절히 상담해 드리겠습니다.





